Terracielo ristrutturato a Montecastello































MONTECASTELLO - MERCATO SARACENO
Terracielo completamente ristrutturato nella piazza di Montecastello.
Indipendenza e posizione strategica caratterizzano questa casa. Un nido dal quale raggiungere facilmente sia i monti, sia il mare.
Il terracielo si trova nella piazza dell'antico borgo di Montecastello, a cinque minuti dal centro storico di Mercato Saraceno e venti da Cesena. È dunque garantita la prossimità a tutti i servizi.
Tutti gli ambienti sono gradevolmente luminosi.
Nella piazza è attualmente in corso un intervento di riqualificazione, che donerà ulteriore pregio all'abitazione.
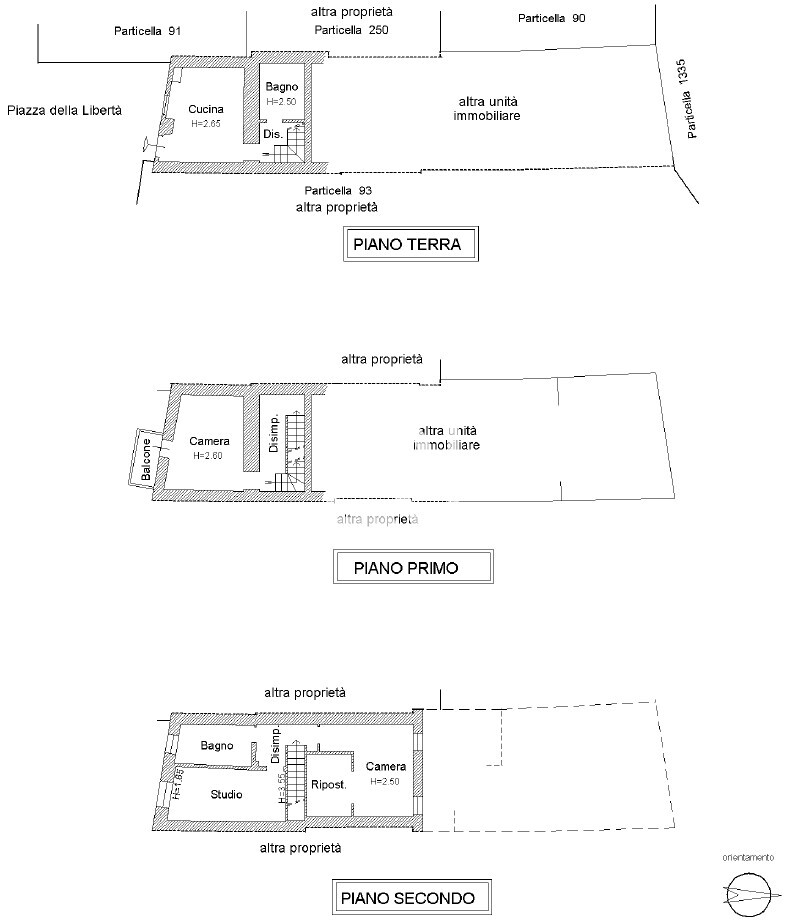
Cucina abitabile, due camere, due bagni (entrambi con box doccia), soggiorno e balcone sono distribuiti in questo modo:
- al piano terra: ingresso dalla piazza nella grande cucina abitabile; primo bagno, utilizzato anche come lavanderia
- al primo piano: camera matrimoniale con balcone che affaccia sulla piazza
- al secondo piano: seconda camera, con cabina armadio; soggiorno; bagno principale, finestrato.
È presente la predisposizione per la climatizzazione.
- INDIPENDENZA
- RECENTE RISTRUTTURAZIONE
- AMBIENTI LUMINOSI
- DUE CAMERE E DUE BAGNI
- BALCONE
SI VALUTANO PERMUTE
Per ulteriori informazioni o per fissare una visita sul posto:
ALESSIO: 3883433926
ROMAGNA CASE: 0547632205
o mandaci una e-mail a a.cavallucci@romagnacase.it